Specificaties
2 etages
5 slaapkamers
4 badkamers
Klassieke massieve houtbouw
Privé wellness faciliteiten met sauna en binnen whirlpool jacuzzi
Gelegen in eeuwenoud pijnbomen bos op 1.800 meter hoogte
Verplichte toeristische verhuur
Uitgekiend verhuur- en beheerconcept
Woonoppervlakte: 130 m²
Objectnummer: ATH 36
Bouwjaar: 2011
Vraagprijs: 690.000
Alpenpark Turracher Höhe | Vrijstaand 10-persoons wellness design chalet op 1800M hoogte
ATH 36 | Vrijstaand 10-persoons design chalet met privé wellness faciliteiten
pre owned
ATH 36 | Vrijstaand 10-persoons design chalet met privé wellness faciliteiten
Vrijstaand design chalet in Alpenpark, prachtig natuurlijk gelegen in een pijnbomenwoud op 1800-meter hoogte. Het vrijstaande, houten design chalet is in 2011 nieuw gebouwd en voorzien van alle luxe die men zich kan voorstellen.
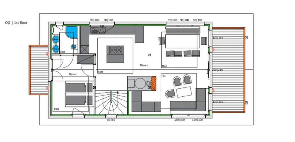
Het ruime 5 sterren chalet beschikt over veel luxe waaronder een inhouse wellness met een sauna, luxe douche en een jacuzzi whirlpool. In totaal zijn er 4 badkamers en 5 slaapkamers. Op de begane grond is een ruime stijlvolle living met een design keuken, ruime zithoek, eethoek en zelfs een sfeervolle gashaard voor de gezellige winteravonden. Vanuit de living is er toegang tot een ruim en overdekt balkon.
Het park is volledig geïntegreerd met de omgeving en gebouwd met de instructie om het natuurlijke karakter, waaronder het oudste pijnbomenwoud van Oostenrijk, zoveel mogelijk intact te laten. De Turracher Höhe staat bekend als één van de meest attractieve vakantiegebieden in de regio Karinthië en Steiermark.
Dit project is ook te reserveren als vakantieverblijf
Vraag de brochure aan
Vul onderstaand uw gegevens in, u ontvangt de brochure van ons in uw mailbox.





















